Промотел. Модульные котельные. ГЛАВНАЯМОДУЛЬНЫЕ КОТЕЛЬНЫЕБытовые и промышленные котлы отопленияНАСОСЫ WILOГорелки газовые, дизельные и мазутныеРадиаторы, запорная арматура, водонагреватели, трубы, мембранные баки, бойлерыСТАТЬИКОНТАКТЫ

 

 

 

промышленные котлы Ygnis

Стальной промышленный котлел Ygnis

 

Водогрейный жаротрубный стальной промышленный котел YGNIS FBG с тупиковой горизонтальной и газоплотной топкой и периферийным пучком дымогарных труб со встроенными турбулизаторами для работы на газообразном и жидком топливе, мощностью от 150 до 2500 кВт. Факел горелки, работающей под наддувом, формируется вдоль горизонтальной оси цилиндрической тупиковой топки от фронта котла, с возвратным движением к фронту и разворотом к периферийно расположенному в водяном объеме котла пучку жаровых труб конвективной поверхности теплообмена. Продукты сгорания по трубам конвективной поверхности поступают в газосборный коллектор в задней части котла, оснащенный газоотводящим патрубком. Для интенсификации теплообмена все трубы конвективной поверхности оснащаются шнековыми турбулизаторами из жаростойкой стали.

Рабочее давление – 5 бар.

Возможно исполнение для рабочего давления 6,8 бар.

Максимальная температура котловой воды – 110*С.

Топливо – природный газ, дизельное топливо, мазут.

 

 

Общее описание.

1.                      Стальной двухходовой жаротрубный котел с горизонтальной цилиндрической топкой с реверсивным развитием факела и периферийным расположением дымогарных труб конвективных поверхностей теплообмена, оснащенных турбулизаторами.

2.                      Внешний кожух котла изготовлен из листового металла, окрашенного порошковой эмалью. Толщина теплоизоляции из минеральной ваты равна 60 мм.

3.                      Фронтальная дверь закрывает топку и обеспечивает уплотнение периметра со стороны продуктов сгорания для формирования газового потока на входе в конвективную поверхность теплообмена. Теплоизоляция осуществляется блоком из жаропрочной и стойкой к эрозии керамики.

4.                      Стандартное исполнение:

·        Фронтальная дверь – с правым расположением петель (возможна поставка с левым расположением петель;

·        Ответный фланец под горелку;

·        Две гильзы для ввода термодатчиков;

·        Смотровое окно для контроля наличия пламени;

·        Фланец для монтажа горелки;

·        Котел оснащен опорной рамой из стального профиля для монтажа на фундаменте, имеет два кронштейна (проушины) для подъема котла.

 

Дополнительная комплектация для котла.

 

1. Панель управления для промышленных котлов FBG 150-1160кВт, состоящая из:

- блочного термостата (повторного взведения);

- контрольного термостата низкой  и высокой температуры теплоносителя (установлен первоначально на 90*С);

- датчика температуры.

2. Панель управления для котлов FBG 1380-2500кВт, состоящая из:

- блокировочного термостата (повторного взведения);

- контрольного термостата низкой и высокой температуры теплоносителя (установлен первоначально на 90*С);

- датчика температуры;

- главного выключателя;

- сигнальной лампы выключения котла при перегреве теплоносителя;

сигнальной лампы выключения горелки;

плавких предохранителей.

Технические характеристики промышленных котлов Ygnis FBG 1380-2500 кВт

Рабочее давление 5 бар            Максимальная температура котловой воды 110*С

максимальное давление 8 бар            Температура уходящих газов 240*С

Модель 13801600186021502500
Полезная мощностькВт13801600186021502500
Тепловая мощностькВт16001856215725002900
К.П.Д. при номинальной мощности%90,390,390,390,390,3
Расход природного газам3/ч147198198229266
Расход жидкого топливал/ч126146170196228
Объем котловой воды (примерный)л21092644257937883714
Диаметр топки котламм80090090010001000
Длина топки котламм18492097209724702470
Гидравлическое сопротивлениембар4030354045
Аэродинамическое сопротивлениембар5,55,566,57
Ф присоединения прямая/обратная линии поз. 1.2.мм150150150200200
Ф присоединения слива воды, поз. 4.мм2"2"2"2"2"
Ф присоединения предохр. клапана, поз. 3.мм65100100125125
Длина эмиссионной трубы горелки min, амм365383383465465
Ф присоединения горелки, поз. bмм380380380380380
Вес без водыкг22292830292137853992

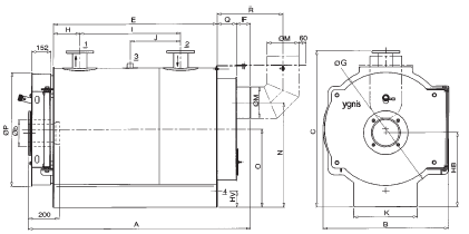
габаритные размеры промышленного котла Ygnis

Размеры промышленных котлов FBG 1380-2500кВт

Модель13801600186021502500
A28043071307135883588
B16391727172718441844
C19142014201421242124
E22622512251230163016
H280280280380380
I17021952195222562256
J898748748748748
K90095095010001000
N12951370137014501450
O9591009100910641064
Q231248248265265
HV9292929292
HB882909909964964
F16101710171018201820
M500500500550550
P16281728172818381838