 | Высокоэффективные проточные водогрейные котлы Rendamax R18 разработаны для систем отопления и горячего водоснабжения жилых, административных зданий и промышленных сооружений. Малые габариты и масса котлов при высоких значениях к.п.д. достигаются за счет применения медных труб с оребрением, полученным методом экструзии. Рациональная конструкция котлов R 18 позволяет быстро выполнять сборку и разборку котла, что обеспечивает простоту и удобство ремонта и обслуживания. Атмосферные газовые горелки низкого давления с малым коэффициентом первичной эжекции воздуха обеспечивают стабильные условия горения во всем диапазоне регулирования мощности котлов, от 20 до 100% с сохранением эксплуатационных характеристик и низкого уровня шума (до 25 дБА). Горелки устойчивы к снижению давления в газовых сетях и сохраняют работоспособность до давления 4 мбар (при соответствующем снижении мощности). Тепловые потери котлов от внешнего охлаждения сведены к миниуму за счет оптимальной конструкции топочной камеры со строенной высококачественной теплоизоляцией. Котлы оснащены блоками автоматического управления и безопасности, а также индикаторами неисправностей. ТЕХНИЧЕСКИЕ ХАРАКТЕРИСТИКИ КОТЛОВ Rendamax R18. |
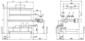
| Модель | | 132 | 154 | 180 | 210 | 244 | 280 | | Полезная мощность | kBt | 481 | 558 | 649 | 756 | 875 | 1002 | | КПД при номинальной мощности | % | 90,3 | 90,3 | 90,3 | 90,3 | 90,3 | 90,3 | | Расход природного газа | м3/ч | 49,3 | 57,9 | 67,4 | 78,8 | 90,8 | 104,0 | | Рабочее давление газа на входе | M6ap | 20 | 20 | 20 | 20 | 20 | 20 | | Объем котловой воды | n | 22 | 23,2 | 24,6 | 26,3 | 28,1 | 30,1 | | Максимальное рабочее давление | 6ap | 6 | 6 | 6 | 6 | 6 | 6 | | D присоединения дымовой трубы | MM | 450 | 5050 | 5050 | 600 | 650 | 700 | | Присоединение газа | Dn | 2" | 2" | 2" | 2" | 65 | 65 | | D присоединения воды, прямая/обратная линия | MM | 80 | 80 | 80 | 80 | 80 | 80 | | D присоединения предохранительного клапана | Dn | 11/4" | 11/4" | 11/4" | 11/2" | 11/2" | 11/2" | | D присоединения сливного клапана | Dn | 11/2" | 11/2" | 11/2" | 2" | 2" | 2" | | Вес без воды | Kr | 620 | 660 | 705 | 760 | 820 | 885 | | Ширина (B) | MM | 1430 | 1430 | 1 430 | 1 430 | 1 400 | 1 400 | | Высота (H) | MM | 1795 | 1795 | 1 795 | 1 795 | 1 895 | 1 895 | | Длина (L) | MM | 1461 | 1636 | 1 842 | 2 080 | 2 350 | 2 636 |
|
 | | Дополнительная комплектация системы управления : - электронная система розжига (R18E); - цифровая система управления с PID регулятором, упрощающим эксплуатацию котла (R18 М); - погодозависимое регулирование, программирование режима работы, например с понижением мощности в ночное время (R18 W); - блок каскадного управления котлами (ККМ). |